2BHK Prefabricated Home Manufacturer India - 001
We provide affordable cost 2BHK Prefabricated Home in India.

Earthquake Resistance
Heat & Cold Resistance
Fire Resistance
Sound Resistance
3 Years Warranty
Project Images




Project Details
1955 sqft
1221 sqft
2
RS. 2500-4500
2
1
1
2
2
1
residential
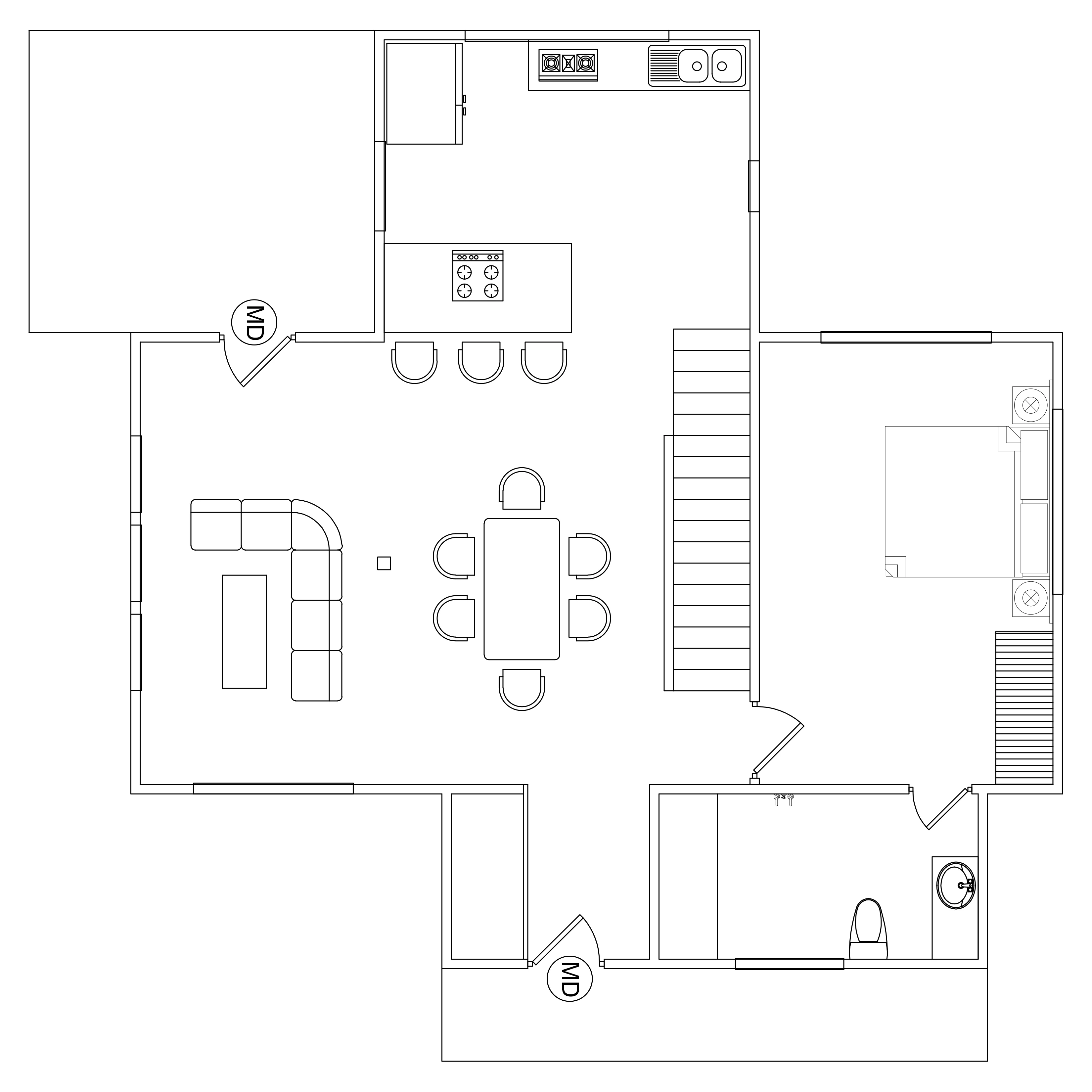
Floor Plan
Take a look at the floor plan of Wooden Cottage Model

Floor 1
Total area: 1221 sqft.
Open kitchen
Double bedroom
Fixed wardrobes
Deck
Dining Area
Kitchen Wardrobe
Living Area
Stair
Toilet
TV Unit
Washbasin Cabinet


Floor 2
Total area: 734 sqft.
Double bedroom
Fixed wardrobes
Living Area
Stair
Toilet

View in 3D
How it works?
Raise a request
Meet Our Expert
Explore Design Options
Book with us
Receive 3D Designs
Finalize Materials & Specifications
Monitor Construction Progress
Handover to Client
Raise a request
Reach out to us to express your interest in building a wooden house/cottage.
WhatsApp Us
We are online now
Get free consultation
Please enter your mobile number:
Reach me on whatsapp