1BHK Perfect Modular Prefab Home Near Goa 007
We develop eco-friendly homes across Goa. Affordable and fully insulated home.

Earthquake Resistance
Heat & Cold Resistance
Fire Resistance
Sound Resistance
3 Years Warranty
Project Images





Project Details
790 sqft
790 sqft
1
RS. 2500-4500
1
1
-
1
1
1
residential
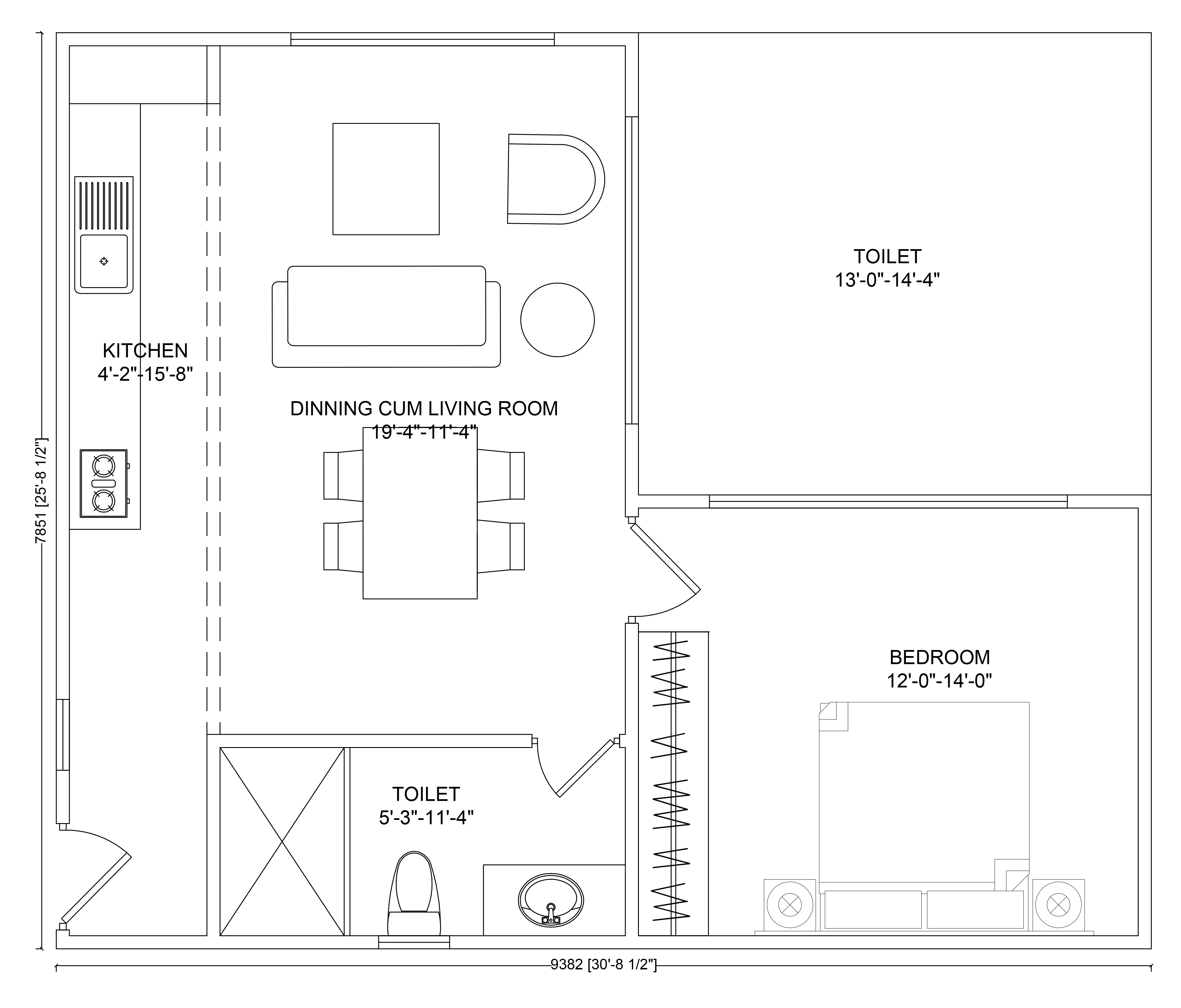
Floor Plan
Take a look at the floor plan of Wooden Cottage Model

Floor 1
Total area: 790 sqft.
Open kitchen
Double bedroom
Fixed wardrobes
Deck
Dining Area
Kitchen Wardrobe
Living Area
Luggage Rack
Toilet
TV Unit
Washbasin Cabinet

View in 3D
How it works?
Raise a request
Meet Our Expert
Explore Design Options
Book with us
Receive 3D Designs
Finalize Materials & Specifications
Monitor Construction Progress
Handover to Client
Raise a request
Reach out to us to express your interest in building a wooden house/cottage.
WhatsApp Us
We are online now
Get free consultation
Please enter your mobile number:
Reach me on whatsapp