1BHK Affordable Wooden House 003
We are manufacturing prefab homes and luxury villas across India.

Earthquake Resistance
Heat & Cold Resistance
Fire Resistance
Sound Resistance
3 Years Warranty
Project Images




Project Details
1005 sqft
1005 sqft
1
RS. 2500-4500
1
1
-
1
1
-
residential
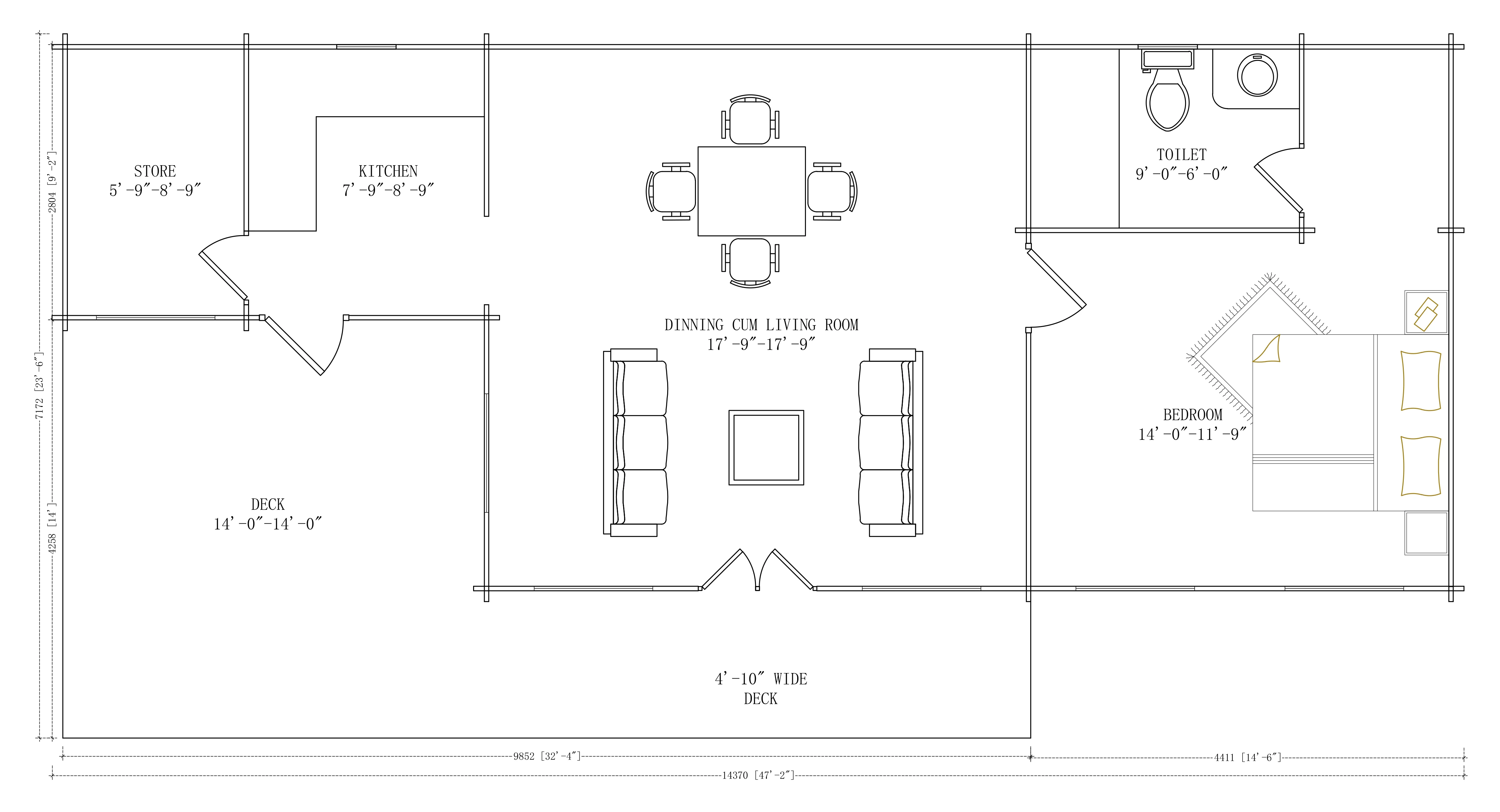
Floor Plan
Take a look at the floor plan of Wooden Cottage Model

Floor 1
Total area: 1005 sqft.
Open kitchen
Double bedroom
Fixed wardrobes
Deck
Dining Area
Kitchen Wardrobe
Living Area
Luggage Rack
Study Table
Toilet
TV Unit
Washbasin Cabinet

View in 3D
How it works?
Raise a request
Meet Our Expert
Explore Design Options
Book with us
Receive 3D Designs
Finalize Materials & Specifications
Monitor Construction Progress
Handover to Client
Raise a request
Reach out to us to express your interest in building a wooden house/cottage.
WhatsApp Us
We are online now
Get free consultation
Please enter your mobile number:
Reach me on whatsapp