Pine Wood Two Storey Wooden Resort - 007
This project represents a double-storey wooden house which completed in 90 days.

Earthquake Resistance
Heat & Cold Resistance
Fire Resistance
Sound Resistance
3 Years Warranty
Project Images




Project Details
1720 sqft
860 sqft
2
RS. 2500-4500
4
-
-
4
4
-
residential
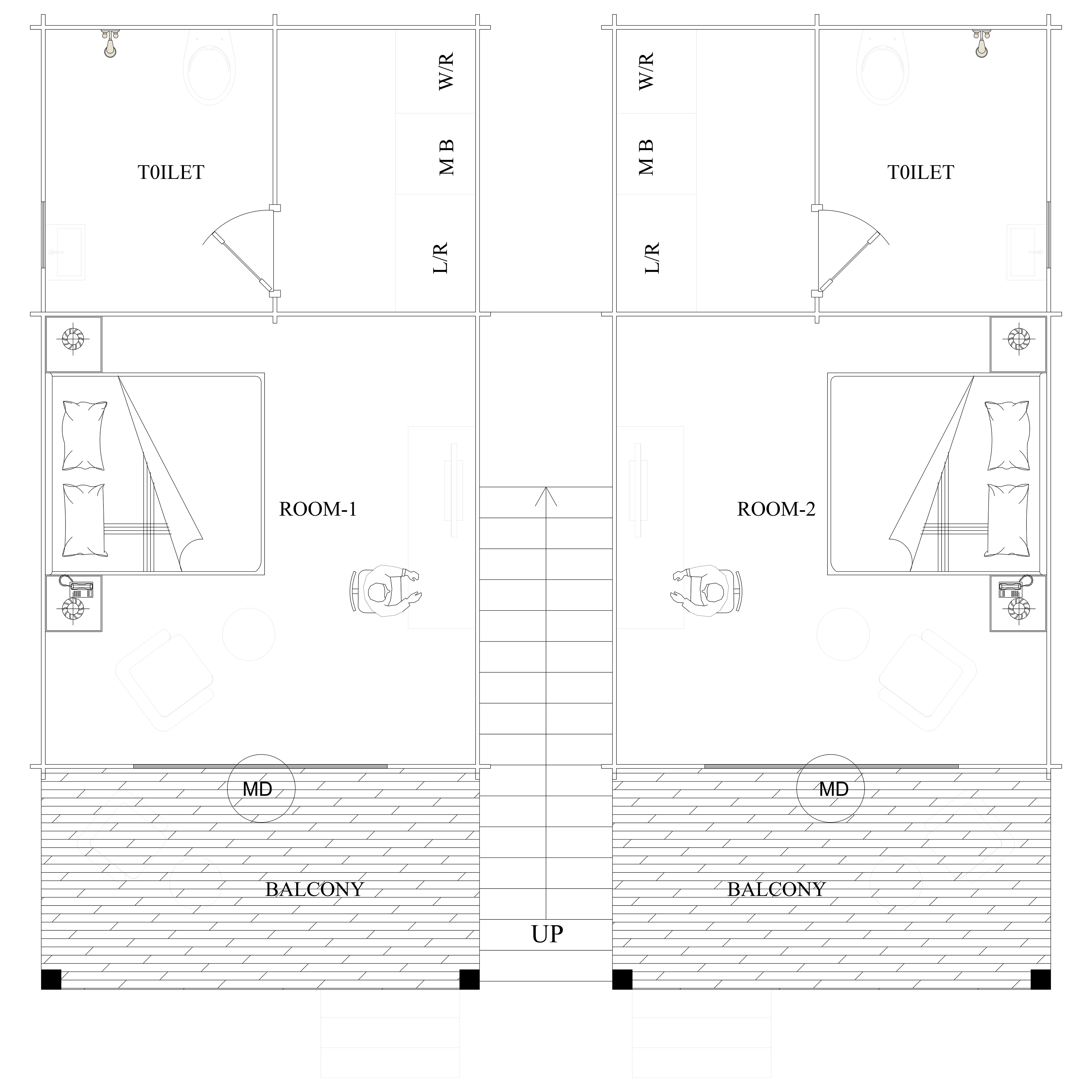
Floor Plan
Take a look at the floor plan of Wooden Cottage Model

Floor 1
Total area: 860 sqft.
Double bedroom
Fixed wardrobes
Deck
Luggage Rack
Mini Bar
Study Table
Toilet
TV Unit
Washbasin Cabinet


Floor 2
Total area: 860 sqft.
Double bedroom
Fixed wardrobes
Deck
Luggage Rack
Mini Bar
Study Table
Toilet
TV Unit
Washbasin Cabinet

View in 3D
How it works?
Raise a request
Meet Our Expert
Explore Design Options
Book with us
Receive 3D Designs
Finalize Materials & Specifications
Monitor Construction Progress
Handover to Client
Raise a request
Reach out to us to express your interest in building a wooden house/cottage.
WhatsApp Us
We are online now
Get free consultation
Please enter your mobile number:
Reach me on whatsapp